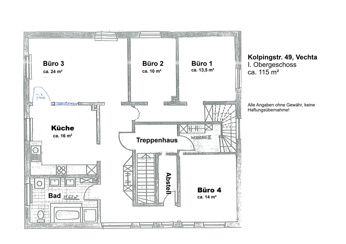
Büroräume im Zentrum von Vechta zu vermieten
Vechta

€ 1050,00 / Monat
Beschreibung
Helle und geräumige Büroräume im Zentrum von Vechta zu vermieten
- Obergeschoss, nicht barrierfrei
- ca. 115 m²
- Altbaucharme mit hohen Decken und Holztüren
- Teppichboden
Das Objekt umfasst 4 Büroräume, eine Küche mit Einbauküche, einen Abstellraum und ein Vollbad.
Am Haus befindet sich 1 Carport-Stellplatz für diese Einheit.
Kaltmiete: 1.050,00 €
Nebenkosten: 100,00 € + Strom
Vermittlung: 2 Kaltmieten zzgl. 19% MwSt.
Ein Besichtigungstermin kann gerne vereinbart werden.
Die Angaben beruhen auf Aussagen des Eigentümers, wobei für eine falsche Übermittlung keine Haftung von uns übernommen wird. Irrtümer, Auslassungen und Zwischenvermittlung vorbehalten. Alle Angaben ohne Gewähr.
Ausstattung
Adresse
- Kolpingstr. 49
- 49377 Vechta