Hauptinhalt | Haben Sie Fragen? VECHTA: 0 44 41 / 88 70 90 | SULINGEN: 0 42 71 / 60 00

Gut geschnitte 2-Zimmer Wohnung mit Balkon in Lohne - zentrumsnah

Lohne
€ 530,00 € / Monat
  • Objektnummer: 150.1105
  • Gesamfläche: 55m²
  • B, 71,3 kwh, Gas, Bj. 1999, B
  • 01.06.2026 ggf. früher
  • 2 Zimmer
  • € 530,00 €

Beschreibung

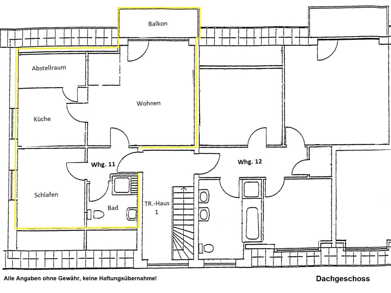
Gut geschnitte 2-Zimmer Wohnung mit Balkon in Lohne - zentrumsnah

Diese ca. 55 m² Wohnung befindet sich im Dachgeschoss eines Mehrfamilienhauses in Lohne und ist zentrumsnah gelegen.

Die Wohnung verfügt über ein Wohnzimmer mit Zugang zum Balkon, eine Küche mit angerenzenden Abstellraum, ein Schlafzimmer und ein Tageslichtbad mit Dusche.

Ein Kellerraum sorgt für zusätzlichen Stauraum.

Die Waschmaschine wird im gemeinschaftlichen Waschkeller untergebracht.

Pkw-Stellplätze befinden sich am Haus.

 

Kaltmiete: 530,00 €
Nebenkosten: 140,00 € zzgl. Strom
Kaution: 1.060,00 €

Ein Besichtigungstermin kann gerne vereinbart werden.

Die Angaben beruhen auf Aussagen des Eigentümers, wobei für eine falsche Übermittlung keine Haftung von uns übernommen wird. Irrtümer, Auslassungen und Zwischenvermittlung vorbehalten. Alle Angaben ohne Gewähr.

Ausstattung

  • Balkon
  • Parkplatz

Adresse

  • Lindenstraße 61a
  • 49393 Lohne

Zurück

Borchers & Aumann ist ein Immobilien- und Bauträgerunternehmen mit Sitz in Vechta und Sulingen.

Büro Vechta
Borchers & Aumann
Immobilien Vechta GbR
Oyther Straße 16 • 49377 Vechta
Telefon: 0 44 41 / 88 70 90
E-Mail: info@borchers-aumann.de

Büro Sulingen
Aumann
Immobilienverwaltung Sulingen GmbH
Am Wolfsbaum 6 • 27232 Sulingen
Telefon: 0 42 71 / 60 00
E-Mail: sulingen@borchers-aumann.de

© 2026 Borchers & Aumann Immobilien GbR
You are using an outdated browser. The website may not be displayed correctly. Close