Hauptinhalt | Haben Sie Fragen? VECHTA: 0 44 41 / 88 70 90 | SULINGEN: 0 42 71 / 60 00

Sanierte 1-Zimmer Wohnung im I. Obergeschoss mit Balkon

Vechta
€ 460,00 / Monat
  • Objektnummer: 181.703
  • Gesamfläche: 48m²
  • B, 90,5 kWh, Gas, Bj. 2006, C
  • 01.04.2026
  • 1 Zimmer
  • € 460,00

Beschreibung

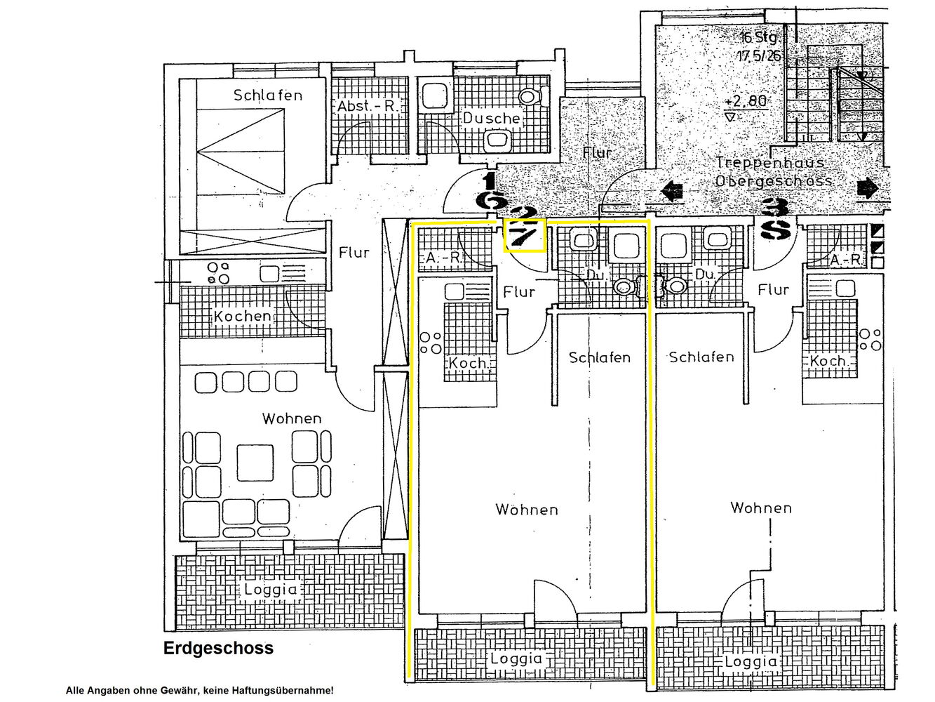
Sanierte und renovierte 1-Zimmer Wohnung mit Balkon im I. Obergeschoss

Diese renovierte Wohnung umfasst einen kombinierten Wohn‑, Schlaf‑ und Kochbereich mit Zugang zu einem großzügigen Balkon. Das Badezimmer wurde frisch saniert und ist mit einer Dusche ausgestattet. Ein praktischer Abstellraum sowie ein kleiner Flur ergänzen den Grundriss.

PKW‑Stellplätze stehen direkt am Haus zur Verfügung.


Kaltmiete: 460,- EUR
Nebenkosten: 150,- EUR + Strom
Kaution: 920,- EUR

Ein Besichtigungstermin kann gerne vereinbart werden.

Energieausweis: B, 90,5 kWh, Gas, Bj. 2006, C

 

Die Angaben beruhen auf Aussagen des Eigentümers, wobei für eine falsche Übermittlung keine Haftung von uns übernommen wird. Irrtümer, Auslassungen und Zwischenvermittlung vorbehalten. Alle Angaben ohne Gewähr.

Ausstattung

  • Balkon
  • Parkplatz

Adresse

  • Stettiner Str. 2
  • 49377 Vechta

Zurück

Borchers & Aumann ist ein Immobilien- und Bauträgerunternehmen mit Sitz in Vechta und Sulingen.

Büro Vechta
Borchers & Aumann
Immobilien Vechta GbR
Oyther Straße 16 • 49377 Vechta
Telefon: 0 44 41 / 88 70 90
E-Mail: info@borchers-aumann.de

Büro Sulingen
Aumann
Immobilienverwaltung Sulingen GmbH
Am Wolfsbaum 6 • 27232 Sulingen
Telefon: 0 42 71 / 60 00
E-Mail: sulingen@borchers-aumann.de

© 2026 Borchers & Aumann Immobilien GbR
You are using an outdated browser. The website may not be displayed correctly. Close