Hauptinhalt | Haben Sie Fragen? VECHTA: 0 44 41 / 88 70 90 | SULINGEN: 0 42 71 / 60 00

Schöne, helle 2-Zimmer Wohnung in Lohne

Lohne
€ 480,00 / Monat
  • Objektnummer: 141.406
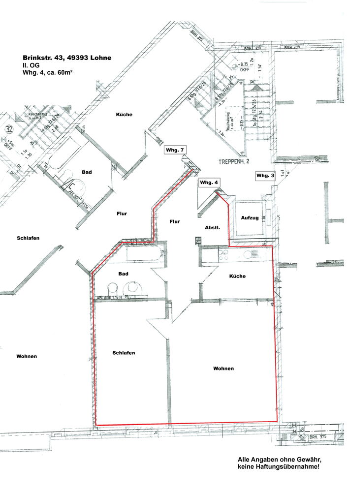
  • Gesamfläche: 60m²
  • B, 141,5 kWh, Gas, Bj. 1989, E
  • sofort
  • 2 Zimmer
  • € 480,00

Beschreibung

Zentrumsnahe 2-Zimmer Wohnung im II. Obergeschoss

Diese ca. 60m² Wohnung befindet sich im 2. Obergeschoss eines Wohn- und Geschäftshauses in Lohne und ist zentrumsnah gelegen.

Die Wohnung verfügt über eine Küche, ein helles Wohnzimmer, ein Schlafzimmer, ein Bad mit Wanne und einen Abstellraum.

Ein Kellerraum sorgt für zusätzlichen Stauraum.

 

Kaltmiete: 480,00 €
Nebenkosten: 230,00 € zzgl. Strom
Kaution: 960,00 €

Ein Besichtigungstermin kann gerne vereinbart werden.

Die Angaben beruhen auf Aussagen des Eigentümers, wobei für eine falsche Übermittlung keine Haftung von uns übernommen wird. Irrtümer, Auslassungen und Zwischenvermittlung vorbehalten. Alle Angaben ohne Gewähr.

Ausstattung

  • Lift

Adresse

  • Brinkstr. 43
  • 49393 Lohne

Zurück

Borchers & Aumann ist ein Immobilien- und Bauträgerunternehmen mit Sitz in Vechta und Sulingen.

Büro Vechta
Borchers & Aumann
Immobilien Vechta GbR
Oyther Straße 16 • 49377 Vechta
Telefon: 0 44 41 / 88 70 90
E-Mail: info@borchers-aumann.de

Büro Sulingen
Aumann
Immobilienverwaltung Sulingen GmbH
Am Wolfsbaum 6 • 27232 Sulingen
Telefon: 0 42 71 / 60 00
E-Mail: sulingen@borchers-aumann.de

© 2026 Borchers & Aumann Immobilien GbR
You are using an outdated browser. The website may not be displayed correctly. Close